г Калининград, пл Победы, д 4А, офис 311
Пн-пт с 09:00 до 21:00, Сб-вс с 11:00 до 18:00

квартира в семейную ипотеку ID: J9992

Калининград, Центральный, проспект Советский, д.238А
Комнаты 1
Площадь 55.6 м²
Жилая 18 м²
Кухня 22.9 м²
Этаж 8 из 9
Сдача 2023 г.

Описание

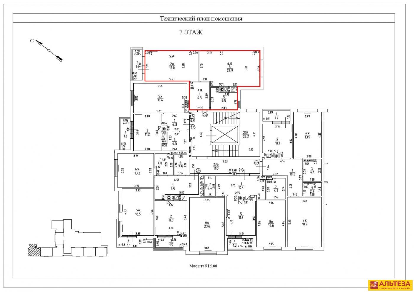
Продается 1 квартира с кухней-гостиной ( евро двушка ) в Центральном районе на Советском проспекте. Квартира находится на 8 этаже 9 этажного дома 2023 года постройки. Общая площадь квартиры 55.6 м 2, жилая комната 18,0 м 2, кухня-гостиная 22,9 м 2, санузел совмещенный 5,5 м 2 . Есть лоджия с панорамным остеклением площадью 1,6 м 2 , выход на лоджию из спальни. Квартира в сером ключе», с автономным отоплением. Высота потолка 2,7 м. В квартиру заведен интернет, установлен домофон. Дом с огороженной территорией, наземным и подземным паркингом. На придомовой территории располагаются спортивная и детская площадка. Дом находится в районе с развитой инфраструктурой, все в шаговой доступности : супермаркет ЕвроСпар, ТЦ Гранд, школа, детские сады, спорткомплекс, салоны красоты, остановки общественного транспорта. Удобная транспортная развязка позволяет быстро оказываться в центре города, до центра 5 минут езды на автомобиле. Быстрый выезд на окружную позволит добраться без пробок в любую точку города. Полное юридическое сопровождение. Очень хорошее предложение….
Просмотр квартиры в любое удобное для Вас время! Сопровождение сделки для покупателя бесплатно! Для покупателей из другого региона провожу консультации онлайн с просмотром жилого комплекса и квартиры. Экономьте свое время обращаясь к профессионалам. Возможно проведение сделки дистанционно не выезжая из вашего города.
Звоните…показ по звонку…жду Вашего звонка !!! Звоните...
Подробнее

Характеристики

  • Тип недвижимости Квартиры
  • Населенный пункт Калининград
  • Район Центральный
  • Адрес проспект Советский, д.238А
  • Количество комнат 1
  • Год постройки дома 2023 г.
  • Общая площадь 55.6 м²
  • Жилая площадь 18 м²
  • Площадь кухни 22.9 м²
  • Этаж 8
  • Этажей в доме 9
  • Тип санузла Совмещенный
  • Тип балкона лоджия
  • Ремонт отделка под чистовую
  • Наличие интернета да
  • Вид из окон во двор
  • Высота потолков в метрах 2.7 м.
  • Тип дома кирпичный
  • апартаменты нет
Задать вопрос


Вас также может заинтересовать:
Квартира в сданном доме по акционной цене
Калининград, улица Миргородская, д.2
Ленинградский
5 232 500
  • Общая площадь:45.5 м²
  • Жилая площадь:14.6 м²
  • Площадь кухни:22.1 м²
  • Этаж:1
8
2-к.квартира, 60.2 м², 2/9 эт.
Калининград, улица Новгородская, д.3А, к.6
Центральный
8 150 000
  • Общая площадь:60.2 м²
  • Жилая площадь:26.8 м²
  • Площадь кухни:13.4 м²
  • Этаж:2
6
2-к.квартира, 74.1 м², 2/9 эт.
Калининград, улица Тихорецкая, д.5
Московский
8 521 500
  • Общая площадь:74.1 м²
  • Жилая площадь:27.5 м²
  • Площадь кухни:22.6 м²
  • Этаж:2

Мы используем файлы cookie, чтобы обеспечить вам наилучший доступ к нашему веб-сайту

Скопировано