г Калининград, пл Победы, д 4А, офис 311
Пн-пт с 09:00 до 21:00, Сб-вс с 11:00 до 18:00

квартира на Балтийском море ID: J9519

Покровское, Покровское, улица Морская, д.1
Комнаты Студия
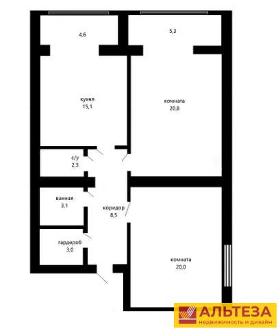
Площадь 83.6 м²
Жилая 40.8 м²
Кухня 15.1 м²
Этаж 3 из 3
Сдача 2025 г.

Описание

Квартира на первой линии моря в пос. Янтарный. Дом сдан ! Продается квартира-студия общей площадью 83,6 м 2 на 3 этаже 3 этажного жилого дома. Жилая площадь 40,8 м 2 ( 20,0+20,8 ), кухня-гостиная 15,1 м 2, совмещенный санузел 3,1, есть гардеробная 3,0 м 2 и две лоджии 5,3 м 2 и 4,6 м 2. Жилой дом расположен в живописном месте поселка Янтарный на ул. Морская, 1. В доме центральное отопление, панорамные окна. Отделка выполнена под чистовую — идеальный вариант для тех, кто планирует завершить ремонт по своему вкусу и своим предпочтениям. Дом с огороженной территорией, что обеспечит комфорт и безопасность.
Преимущества выбора данной квартиры:
✅ Близость к природе и морскому побережью делает проживание здесь особенно привлекательным для ценителей тишины и спокойствия.
✅ Возможность быстро добраться до курортной зоны и городских достопримечательностей благодаря удобному расположению дома.
✅ квартира станет идеальным выбором для молодой пары, небольшой семьи или для тех, кто мечтает о собственном уголке на берегу моря .
Идеальное предложение для желающих обустроить своё комфортное гнездышко по собственному проекту!
Приглашаем Вас на просмотр для того, чтобы лично и убедиться во всех её преимуществах!
Идеальное место, хорошая цена ! Звоните !
Подробнее

Характеристики

  • Тип недвижимости Квартиры
  • Населенный пункт Покровское
  • Микрорайон Покровское
  • Адрес улица Морская, д.1
  • Количество комнат Студия
  • Год постройки дома 2025 г.
  • Общая площадь 83.6 м²
  • Жилая площадь 40.8 м²
  • Площадь кухни 15.1 м²
  • Этаж 3
  • Этажей в доме 3
  • Тип санузла Совмещенный
  • Тип балкона лоджия
  • Ремонт отделка под чистовую
  • Наличие интернета да
  • Высота потолков в метрах 2.7 м.
  • Тип дома монолитно-каркасный
  • апартаменты нет
Задать вопрос


Вас также может заинтересовать:
8
2-к.квартира, 83 м², 1/3 эт.
Покровское, улица Морская, д.1

11 799 000
  • Общая площадь:83 м²
  • Жилая площадь:40.8 м²
  • Площадь кухни:15.1 м²
  • Этаж:1
8
2-к.квартира, 82.7 м², 1/3 эт.
Покровское, улица Морская, д.1

11 799 000
  • Общая площадь:82.7 м²
  • Жилая площадь:40.8 м²
  • Площадь кухни:15.1 м²
  • Этаж:1
7
квартира на Балтийском море
Покровское, улица Морская, д.1
Покровское
11 999 000
  • Общая площадь:82.6 м²
  • Жилая площадь:40.8 м²
  • Площадь кухни:15.1 м²
  • Этаж:3

Мы используем файлы cookie, чтобы обеспечить вам наилучший доступ к нашему веб-сайту

Скопировано