г Калининград, пл Победы, д 4А, офис 311
Пн-пт с 09:00 до 21:00, Сб-вс с 11:00 до 18:00

квартира на Балтийском море ID: J9516

Покровское, Покровское, улица Морская, д.1
Комнаты Студия
Площадь 45.2 м²
Этаж 2 из 3
Сдача 2025 г.
Материал монолитно-каркасный

Описание

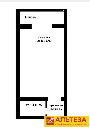
Квартира на первой линии моря в пос. Янтарный. Дом сдан ! Продается квартира-студия общей площадью 45.2 м 2 на 2 этаже 3 этажного жилого дома. Комната 31,8 м 2, совмещенный санузел, шикарная лоджия 6,1 м 2. Жилой дом расположен в живописном месте поселка Янтарный на ул. Морская, 1. В доме центральное отопление, панорамные окна. Отделка выполнена под чистовую — идеальный вариант для тех, кто планирует завершить ремонт по своему вкусу и своим предпочтениям. Дом с огороженной территорией, что обеспечит комфорт и безопасность.
Преимущества выбора данной квартиры:
✅ Близость к природе и морскому побережью делает проживание здесь особенно привлекательным для ценителей тишины и спокойствия.
✅ Возможность быстро добраться до курортной зоны и городских достопримечательностей благодаря удобному расположению дома.
✅ квартира станет идеальным выбором для молодой пары, небольшой семьи или для тех, кто мечтает о собственном уголке на берегу моря .
Идеальное предложение для желающих обустроить своё комфортное гнездышко по собственному проекту!
Приглашаем Вас на просмотр для того, чтобы лично и убедиться во всех её преимуществах!
Идеальное место, хорошая цена ! Звоните !
Подробнее

Характеристики

  • Тип недвижимости Квартиры
  • Населенный пункт Покровское
  • Микрорайон Покровское
  • Адрес улица Морская, д.1
  • Количество комнат Студия
  • Год постройки дома 2025 г.
  • Общая площадь 45.2 м²
  • Этаж 2
  • Этажей в доме 3
  • Тип санузла Совмещенный
  • Тип балкона лоджия
  • Ремонт отделка под чистовую
  • Наличие интернета да
  • Высота потолков в метрах 2.7 м.
  • Тип дома монолитно-каркасный
  • апартаменты нет
Задать вопрос


Вас также может заинтересовать:
8
Студия, 44.9 м², 1/3 эт.
Покровское, улица Морская, д.1

6 799 000
  • Общая площадь:44.9 м²
  • Жилая площадь:31.8 м²
  • Площадь кухни:6 м²
  • Этаж:1
8
Студия, 44.6 м², 2/3 эт.
Покровское, улица Морская, д.1

6 999 000
  • Общая площадь:44.6 м²
  • Жилая площадь:31.8 м²
  • Площадь кухни:6 м²
  • Этаж:2
8
Студия, 44.7 м², 1/3 эт.
Покровское, улица Морская, д.1

6 799 000
  • Общая площадь:44.7 м²
  • Жилая площадь:31.8 м²
  • Площадь кухни:6 м²
  • Этаж:1

Мы используем файлы cookie, чтобы обеспечить вам наилучший доступ к нашему веб-сайту

Скопировано