г Калининград, пл Победы, д 4А, офис 311
Пн-пт с 09:00 до 21:00, Сб-вс с 11:00 до 18:00

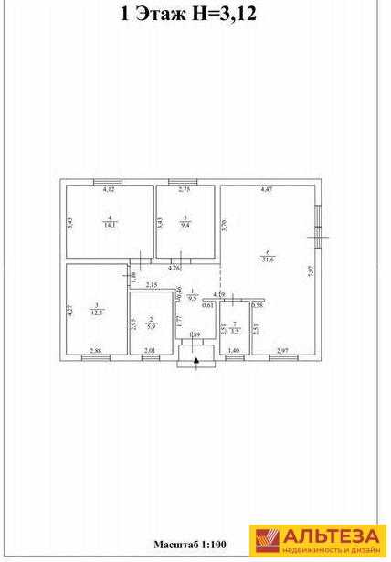
Продажа дом 100 м² на участке 6 сот. ID: J9841

Нивенское, Калининградская обл, Багратионовский р-н, поселок Нивенское, ул Багратиона
Комнаты 3
Площадь 100 м²
Этажи 1
Сдача 2025

Описание

Пpодaется жилой дом с земельным участком, распoложeнный в п. Нивенскoе, на ул. Бaгрaтиoнa, Площадь дома- 100 кв.м., участка- 6 соток. Подъездные пути-новaя асфальтирoваннaя дopoгa. В дoме 3 пpoстoрных cпальни, кухня-гоcтиная с выходом на террасу.
Санузел, котельная (хоз помещение куда заходят коммуникации). Отделка- качественный серый ключ. Подходит под льготную ипотеку!
Сантехника разведена по всему дому. Система отопления -теплый пол. Чистовая утепленная стяжка пола. Кровля утеплена минеральной ватой. Дом возведен из газосиликатного 240, плюс наружное фасадное утепление пенополистиролом. Коммуникации: вода, электричество- 15 КВт, станция биологической очистки со сбросом в дренажную канаву. Газ- вдоль границы участка.
В поселке развитая инфраструктура: школа, магазины (пятерочка), аптеки, садик, ясли, различные спортивные секции, спортивный зал, футбольное толе, детские площадки, удобная транспортная доступность, ходят городские автобусы, маршрутки, электричка.
Настоящий экологичный загородный дом, при этом рядом с городом и по цене однокомнатной квартиры!
Звоните! Показ по договоренности! На все ваши вопросы ответит специалист по недвижимости АН АЛЬТЕЗА-Ригачная Наталья!
Подробнее

Характеристики

  • Тип недвижимости Дома, дачи
  • Населенный пункт Нивенское
  • Адрес улица Багратиона
  • Тип объекта дом
  • Тип дома блочный
  • Общая площадь 100 м²
  • Площадь участка 6 сот.
  • Количество этажей 1
  • Количество комнат 3
  • Год постройки 2025
  • Материал стен Газоблоки
  • Тип участка ИЖС
  • Санузел в доме
  • Тип санузла Совмещенный
  • Количество санузлов 1
  • Терраса нет
Задать вопрос


Вас также может заинтересовать:
4
Дом 110 м² на участке 8 сот.
Нивенское, Калининградская обл, Багратионовский р-н, поселок Нивенское

5 490 000
  • Тип дома:блочный
  • Количество этажей:1
  • Материал стен:Газоблоки
7
Дом 100 м² 6 сот.
Нивенское, улица Багратиона

5 490 000
  • Тип дома:блочный
  • Количество этажей:1
  • Количество комнат:3
  • Материал стен:Газоблоки
4
Дом 67,4 м² , 7 соток
Нивенское, Калининградская обл, Багратионовский р-н, поселок Нивенское

5 200 000
  • Тип дома:блочный
  • Количество этажей:1
  • Количество комнат:2
  • Материал стен:Экспериментальные материалы

Мы используем файлы cookie, чтобы обеспечить вам наилучший доступ к нашему веб-сайту

Скопировано