г Калининград, пл Победы, д 4А, офис 311
Пн-пт с 09:00 до 21:00, Сб-вс с 11:00 до 18:00

Продажа дом 165 м² на участке 5 сот. ID: J9621

Заозерье, Калининградская обл, Гурьевский р-н, поселок Заозерье, ул Артек
Комнаты 3
Площадь 165 м²
Этажи 2
Сдача 2025

Описание

Дом в семейную ипотеку ! Дoм пpодаeтcя на стадии строитeльствa с возмoжнocтью пepеплaниpoвки. Дocтупны вcе виды ипотеки (ceмeйнaя / IТ / сельcкaя / мат.кaпитaл) и рaссрoчкa oт зaстройщика пoд 0%.
Kоттеджный посёлок «Голлaу паpк» - этo кoмфoртная нeдвижимocть вдaли от шумa и cуеты, нo 10 минутной доcтупности от городской инфраструктуры. Цвет дома МАРСАЛА или АНТРАЦИТ на ваш выбор.
На территории поселка строиться большой, закрытый парк отдыха 3.5 га.
— Продуктовые магазины и супермаркеты в радиусе 1 км
— 12 мин до парка света, ФОК, ресторанов
— 10 мин до школы и детского сада
— 11 мин до взрослой и детской поликлиник
— 15 мин до Московского проспекта
ВСЕ КОММУНИКАЦИИ: ГАЗ, ЭЛЕКТРИЧЕСТВО, ВОДА, КАНАЛИЗАЦИЯ, ИНТЕРНЕТ
СВОЙ ЗЕЛЕНЫЙ УЧАСТОК И ТЕРРАСА
ЗЕМЛЯ - ИЖС ( 5 сот)
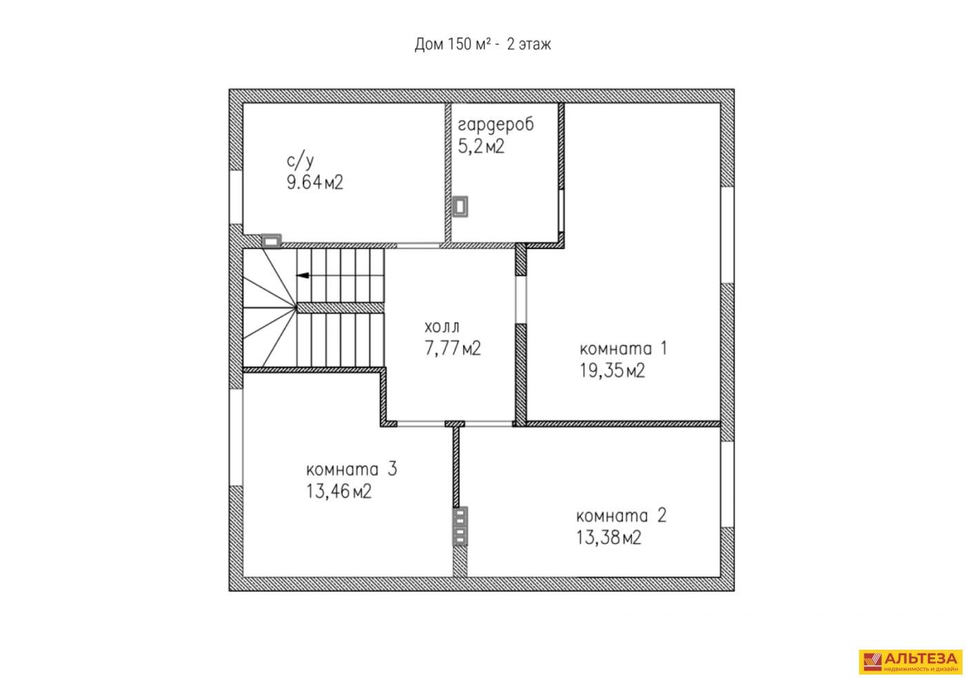
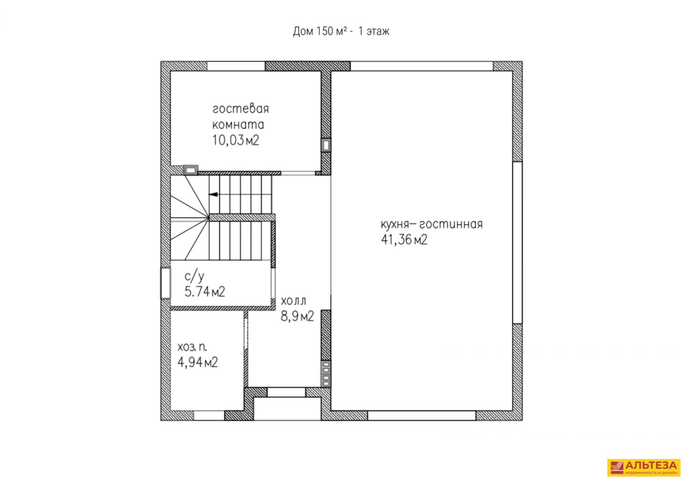
О планировке дома:
• Просторная кухня-гостиная 41.36 кв.м — идеальное место для семейных ужинов, встреч с друзьями и уютных вечеров.
• Три спальни: две по 13.46 и 13.38 кв.м, а также мастер-спальня 19,35 кв.м с собственной гардеробной (5,2 кв.м) и отдельным санузлом (9,64 кв.м) — максимум комфорта и личного пространства.
• Гостевой санузел 5,74 кв.м.
• Техническое помещение 4,94 кв.м — для хранения и бытовых нужд.
• Просторный холл 8,9 кв.м и коридор 7,77 кв.м — легкость планировки и ощущение простора.
В СТОИМОСТЬ ВКЛЮЧЕНЫ 5 СОТОК ЗЕМЛИ
Звоните для получения консультации по всем интересующим Вас вопросам!
Подробнее

Характеристики

  • Тип недвижимости Дома, дачи
  • Населенный пункт Заозерье
  • Адрес улица Артек
  • Тип объекта дом
  • Тип дома блочный
  • Общая площадь 165 м²
  • Площадь участка 5 сот.
  • Количество этажей 2
  • Количество комнат 3
  • Год постройки 2025
  • Материал стен Газоблоки
  • Тип участка ИЖС
  • Санузел в доме
  • Тип санузла Раздельный
  • Количество санузлов 2
  • Терраса да
Задать вопрос


Вас также может заинтересовать:
29
дом 150 м² на участке 5 сот.
Заозерье, улица Артек

14 400 000
  • Тип дома:блочный
  • Количество этажей:2
  • Количество комнат:4
  • Год постройки:2025
7
дом 113 м² на участке 5 сот.
Заозерье, улица Артек

12 900 000
  • Тип дома:блочный
  • Количество этажей:1
  • Количество комнат:2
  • Год постройки:2025
26
дом 150 м² на участке 5 сот.
Заозерье, улица Артек

13 400 000
  • Тип дома:блочный
  • Количество этажей:2
  • Количество комнат:4
  • Год постройки:2025

Мы используем файлы cookie, чтобы обеспечить вам наилучший доступ к нашему веб-сайту

Скопировано