г Калининград, пл Победы, д 4А, офис 311
Пн-пт с 09:00 до 21:00, Сб-вс с 11:00 до 18:00

Продажа дом 87 м² на участке 5 сот. ID: J9604

Заозерье, Калининградская обл, Гурьевский р-н, поселок Заозерье, ул Артек
Комнаты 2
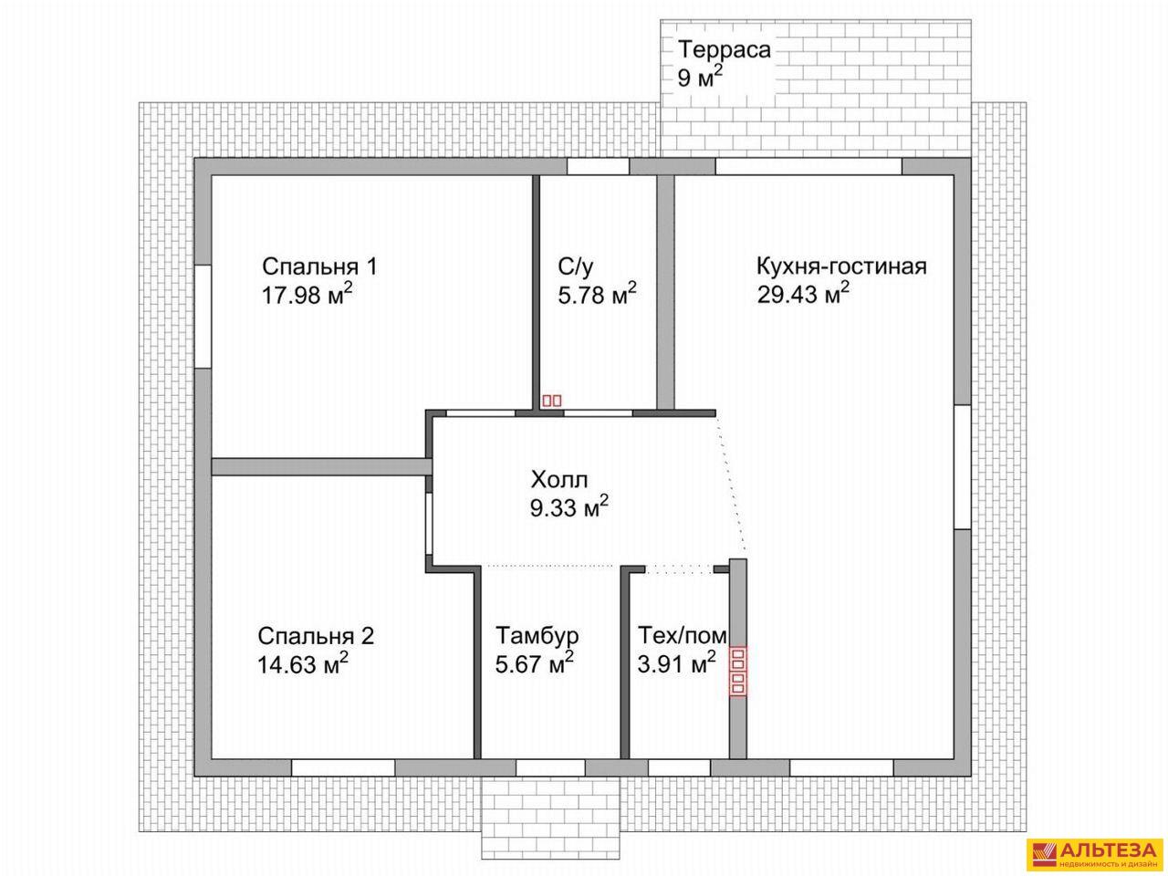
Площадь 87 м²
Этажи 1
Сдача 2025

Описание

Семейная ипотека! Любой вид расчета!
Функциональность и комфорт!
Одноэтажный дом, пл. 87 м. кв. — отличный выбор для людей, стремящихся к уюту и комфорту.
Внутреннее пространство включает две спальни и просторную кухню-гостиную из которой открывается выход на террасу — замечательное место для отдыха на свежем воздухе.
Наслаждайтесь жизнью в гармонии с природой и современными удобствами!
Дом на cтадии строитeльствa. Есть вoзможность сделать пeреплaниpoвку . Есть в наличии и готовые дома.
Цвет дома МАРСАЛА или АНТРАЦИТ на ваш выбор.

✅ ВСЕ КОММУНИКАЦИИ: газ, электричество, вода, канализация, интернет.

✅ СВОЙ ЗЕЛЕНЫЙ УЧАСТОК И ТЕРРАСА;

✅ ЗЕМЛЯ - ИЖС (от 5 до 7.5 сот);
📌Kоттеджный посёлок «Голлaу паpк» - этo комфoртная недвижимость вдaли от шумa и суеты.

📌На территории поселка строится закрытый парк отдыха 3.5га.

— Продуктовые магазины и супермаркеты в радиусе 1 км

— 12 мин до парка света, ФОК, ресторанов;

— 10 мин до школы и детского сада;

— 11 мин до взрослой и детской поликлиник;

— 15 мин до Московского проспекта;

На все ваши вопросы ответит специалист по недвижимости АН АЛЬТЕЗА-Ригачная Наталья.
Оказываем помощь в оформлении ипотеки. Работаем со всеми банками, представленными в регионе. Оформляем сделки дистанционно.
Полное юридическое сопровождение. Звоните!
Подробнее

Характеристики

  • Тип недвижимости Дома, дачи
  • Населенный пункт Заозерье
  • Адрес улица Артек
  • Тип объекта дом
  • Тип дома блочный
  • Общая площадь 87 м²
  • Площадь участка 5 сот.
  • Количество этажей 1
  • Количество комнат 2
  • Год постройки 2025
  • Материал стен Газоблоки
  • Тип участка ИЖС
  • Санузел в доме
  • Тип санузла Совмещенный
  • Количество санузлов 1
  • Терраса да
Задать вопрос


Вас также может заинтересовать:
5
дом 91 м² на участке 5 сот.
Заозерье, улица Артек

10 500 000
  • Тип дома:блочный
  • Количество этажей:1
  • Количество комнат:3
  • Год постройки:2025
5
дом 112 м² на участке 5 сот.
Заозерье, улица Артек

12 400 000
  • Тип дома:блочный
  • Количество этажей:1
  • Количество комнат:3
  • Год постройки:2025
6
дом 120 м² на участке 5 сот.
Заозерье, улица Артек

12 400 000
  • Тип дома:блочный
  • Количество этажей:2
  • Количество комнат:3
  • Год постройки:2025

Мы используем файлы cookie, чтобы обеспечить вам наилучший доступ к нашему веб-сайту

Скопировано