г Калининград, пл Победы, д 4А, офис 311
Пн-пт с 09:00 до 21:00, Сб-вс с 11:00 до 18:00

Дом 130 м² на участке 5 сот. ID: J9603

Заозерье, Калининградская обл, Гурьевский р-н, поселок Заозерье, ул Артек
Комнаты 4
Площадь 130 м²
Этажи 2

Описание

Коттеджный посёлок Ваш идеальный дом ждёт вас!
О проекте
Коттеджный посёлок от застройщика современная недвижимость в 10 минутах от городской инфраструктуры.

Преимущества:
Коммуникации: газ, электричество, вода, канализация, интернет

Территория: закрытый парк отдыха 3,5 га

Цвета фасадов: на выбор МАРСАЛА или АНТРАЦИТ

Земля: ИЖС (5–7,5 соток)

Участок: с террасой и зелёной зоной

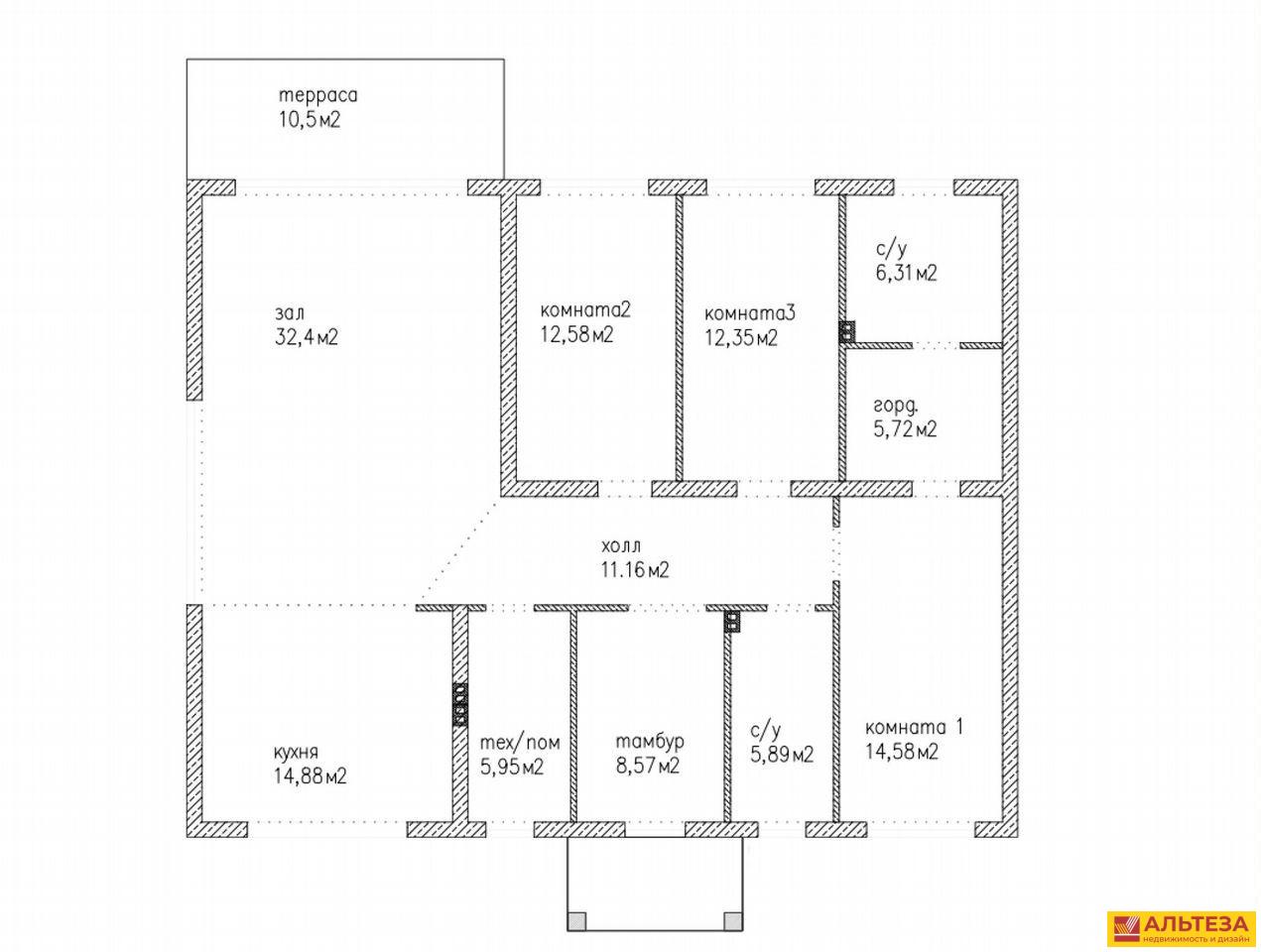
Планировка дома:
Кухня-гостиная: 47,28 м²

Спальни: 3 комнаты (2 × 12,58 м², 1 × 14,58 м² с гардеробной)

Санузлы: гостевой и в мастер-спальне

Дополнительные помещения: техническое (5,95 м²)

Общие зоны: холл (11,16 м²), коридор (8,57 м²)

Инфраструктура:
Магазины: в радиусе 1 км

Школы и сады: 10 минут

Поликлиники: 11 минут

Парк света и ФОК: 12 минут

Московский проспект: 15 минут

Условия покупки:
Ипотека: все виды (семейная, IT, сельская)

Материнский капитал: принимается

Рассрочка: от застройщика под 0%

В стоимость: включены 5 соток земли

Не упустите возможность стать владельцем современного дома в уютном посёлке! Звоните прямо сейчас для получения подробной информации и записи на просмотр.
Подробнее

Характеристики

  • Тип недвижимости Дома, дачи
  • Населенный пункт Заозерье
  • Адрес улица Артек
  • Тип объекта дом
  • Тип дома блочный
  • Общая площадь 130 м²
  • Площадь участка 5 сот.
  • Количество этажей 2
  • Количество комнат 4
  • Материал стен Газоблоки
  • Тип участка ИЖС
  • Санузел в доме
  • Тип санузла Совмещенный
  • Количество санузлов 1
  • Терраса нет
Задать вопрос


Вас также может заинтересовать:
29
дом 150 м² на участке 5 сот.
Заозерье, улица Артек

14 400 000
  • Тип дома:блочный
  • Количество этажей:2
  • Количество комнат:4
  • Год постройки:2025
7
дом 113 м² на участке 5 сот.
Заозерье, улица Артек

12 900 000
  • Тип дома:блочный
  • Количество этажей:1
  • Количество комнат:2
  • Год постройки:2025
26
дом 150 м² на участке 5 сот.
Заозерье, улица Артек

13 400 000
  • Тип дома:блочный
  • Количество этажей:2
  • Количество комнат:4
  • Год постройки:2025

Мы используем файлы cookie, чтобы обеспечить вам наилучший доступ к нашему веб-сайту

Скопировано