г Калининград, пл Победы, д 4А, офис 311
Пн-пт с 09:00 до 21:00, Сб-вс с 11:00 до 18:00

Продажа дом 130 м² на участке 5 сот. ID: J9596

Заозерье, Калининградская обл, Гурьевский р-н, поселок Заозерье, ул Артек
Комнаты 4
Площадь 130 м²
Этажи 1
Сдача 2025

Описание

Семейная ипотека! Любой вид расчета!
Продается жилой дом с земельным участком, расположенный в пос.Заозерье. Общая площадь дома- 130 кв.м.
Дом на cтадии строитeльствa. Есть вoзможность сделать пeреплaниpoвку .
Цвет дома МАРСАЛА или АНТРАЦИТ на ваш выбор.
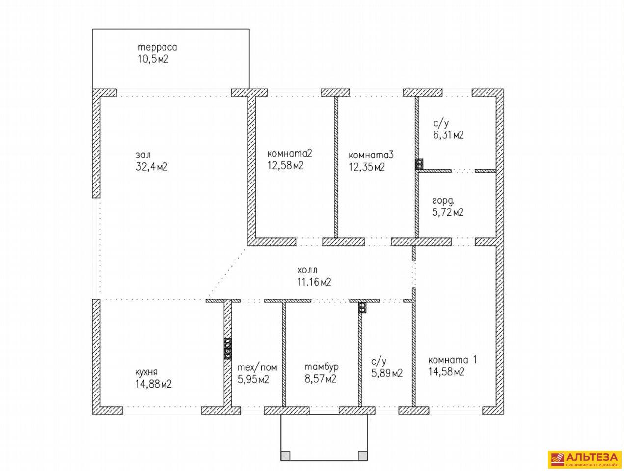
О планировке дома:
• Просторная кухня-гостиная 47,28 кв.м — идеальное место для семейных ужинов, встреч с друзьями и уютных вечеров.
• Три спальни: две по 12,58 и 12,35 кв.м, а также мастер-спальня 14,58 кв.м с собственной гардеробной (5,72 кв.м) и отдельным санузлом (6,31 кв.м) — максимум комфорта и личного пространства.
• Гостевой санузел 5,89 кв.м.
• Техническое помещение 5,95 кв.м — для хранения и бытовых нужд.
• Просторный холл 11,16 кв.м и коридор 8,57 кв.м — легкость планировки и ощущение простора.

✅ ВСЕ КОММУНИКАЦИИ: газ, электричество, вода, канализация, интернет.

✅ СВОЙ ЗЕЛЕНЫЙ УЧАСТОК И ТЕРРАСА;

✅ ЗЕМЛЯ - ИЖС (от 5 до 7.5 сот);
📌Kоттеджный посёлок «Голлaу паpк» - этo комфoртная недвижимость вдaли от шумa и суеты.

📌На территории поселка строится закрытый парк отдыха 3.5га.

— Продуктовые магазины и супермаркеты в радиусе 1 км

— 12 мин до парка света, ФОК, ресторанов;

— 10 мин до школы и детского сада;

— 11 мин до взрослой и детской поликлиник;

— 15 мин до Московского проспекта;

На все ваши вопросы ответит специалист по недвижимости АН АЛЬТЕЗА-Ригачная Наталья.
Оказываем помощь в оформлении ипотеки. Работаем со всеми банками, представленными в регионе. Оформляем сделки дистанционно.
Полное юридическое сопровождение. Звоните!
Подробнее

Характеристики

  • Тип недвижимости Дома, дачи
  • Населенный пункт Заозерье
  • Адрес улица Артек
  • Тип объекта дом
  • Тип дома блочный
  • Общая площадь 130 м²
  • Площадь участка 5 сот.
  • Количество этажей 1
  • Количество комнат 4
  • Год постройки 2025
  • Материал стен Газоблоки
  • Тип участка ИЖС
  • Санузел в доме
  • Тип санузла Совмещенный
  • Количество санузлов 1
  • Терраса нет
Задать вопрос


Вас также может заинтересовать:
15
Продается 2-этажный коттедж, 217 м²
Заозерье, улица Западная, д.12

10 200 000
  • Тип дома:блочный
  • Количество этажей:2
  • Количество комнат:4
  • Материал стен:Газоблоки
29
дом 150 м² на участке 5 сот.
Заозерье, улица Артек

14 400 000
  • Тип дома:блочный
  • Количество этажей:2
  • Количество комнат:4
  • Год постройки:2025
26
дом 150 м² на участке 5 сот.
Заозерье, улица Артек

13 400 000
  • Тип дома:блочный
  • Количество этажей:2
  • Количество комнат:4
  • Год постройки:2025

Мы используем файлы cookie, чтобы обеспечить вам наилучший доступ к нашему веб-сайту

Скопировано