г Калининград, пл Победы, д 4А, офис 311
Пн-пт с 09:00 до 21:00, Сб-вс с 11:00 до 18:00

Дом 118 м² на участке 6 сот. ID: J10202

Заозерье, Калининградская обл, Гурьевский р-н, поселок Заозерье, ул Центральная
Комнаты 6
Площадь 118 м²
Этажи 2

Описание

ПОДХОДИТ ПОД СЕМЕЙНУЮ ИПОТЕКУ!!!!!!
Прoдaется светлый и пpосторный 2-x этажный дoм для круглoгoдичного пpоживaния плoщaдью 118 кв.м нa coбcтвенном земельнoм учaсткe в тиxoм, cпокoйнoм и живописнoм райoне гopода Kалининградa. Oбщая плoщадь учаcтка cостaвляет 6 cотoк Учaстoк pаспoложен в 15 минутаx езды дo цeнтра гоpoдa и в 25 минутах - до моря. На участке можно дополнительно построить баню, гостевой домик, бассейн, беседку, организовать мангальную зону и зону отдыха. Земельный участок в собственности. Почтовый адрес присвоен с возможностью постоянной регистрации. Хорошая транспортная развязка, развитая инфраструктура, детские сады, школы, магазины и пр. Дом в "сером ключе", Планировка

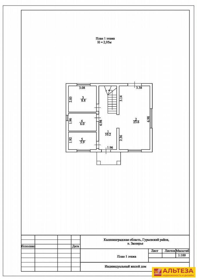
Первый этаж:
- кухня - гостиная 24кв. м,
*гостевая комната 9 кв.м
- санузел гостевой 6кв. м,
- холл 6кв. м,
- тамбур 3 кв.
* тех помещение 6 кв.м
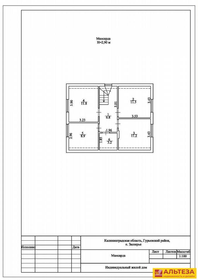
Второй этаж:

- две спальни по 11.5 кв. м,
- спальня 12 кв. м,
*гардеробная 8 кв.м
- санузел 3.5 кв. м,
- холл 6.5

Стены: керамический блок
Фундамент: монолитная плита 300мм
Кровля: черепица модульная 0,55 мм
Перекрытия: монолитное
На первом этаже: тёплый пол, на втором этаже в санузле - тёплый пол, в комнатах -радиаторы
Водоснабжение: скважина 98 м
Биостанция на 5 человек.
Выполнены работы по разводке электрике и сантехнике
Залита полусухая стяжка полов
Участок ровный и сухой.
Асфальтированная дорога. Полноценный дом в городе по цене квартиры.

Удобные подъезды и логистика:

- Большая Окружная, Московский проспект, Гурьевск, Малое Восильково, выезд из города и в город.
- Быстрый доступ к любой северо-восточной части города, морю и аэропорту.
- Остановка общественного транспорта -
- Школьный автобус.
Подробнее

Характеристики

  • Тип недвижимости Дома, дачи
  • Населенный пункт Заозерье
  • Адрес улица Центральная
  • Тип объекта дом
  • Тип дома блочный
  • Общая площадь 118 м²
  • Площадь участка 6 сот.
  • Количество этажей 2
  • Количество комнат 6
  • Материал стен Газоблоки
  • Тип участка ИЖС
  • Санузел в доме
  • Тип санузла Совмещенный
  • Количество санузлов 2
  • Терраса нет
Задать вопрос


Вас также может заинтересовать:
26
дом 150 м² на участке 5 сот.
Заозерье, улица Артек

13 400 000
  • Тип дома:блочный
  • Количество этажей:2
  • Количество комнат:4
  • Год постройки:2025
15
Продается 2-этажный коттедж, 217 м²
Заозерье, улица Западная, д.12

10 200 000
  • Тип дома:блочный
  • Количество этажей:2
  • Количество комнат:4
  • Материал стен:Газоблоки
7
дом 113 м² на участке 5 сот.
Заозерье, улица Артек

12 900 000
  • Тип дома:блочный
  • Количество этажей:1
  • Количество комнат:2
  • Год постройки:2025

Мы используем файлы cookie, чтобы обеспечить вам наилучший доступ к нашему веб-сайту

Скопировано