г Калининград, пл Победы, д 4А, офис 311
Пн-пт с 09:00 до 21:00, Сб-вс с 11:00 до 18:00

цена снижена ID: J10233

Светлогорск, бульвар Олимпийский, д.4
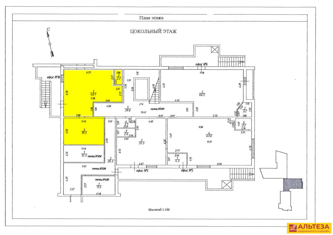
Площадь 61.8 м²
Этаж 1 из 7

Описание

АКЦИЯ ! Цена снижена !
Продается офисное помещение в жилом доме на МОРЕ в г. Светлогорске, в районе озера Тихое на Олимпийском бульваре. Офисное помещение находится в цокольном этаже 7 этажного многоквартирного жилого дома в ЖК «Стрелка». Общая площадь помещения 61,8 м 2, состоит из двух помещений, есть санузел. Здание дома выполнено в оригинальном архитектурном решении – имеет крестообразную форму, образуемую соединением четырёх блоков – секций, объединённых общей вестибюльной группой. Конструкция здания – монолитная железобетонная стеновая система с продольными и поперечными стенами, с монолитными железобетонными перекрытиями. Фасад дома выполнен из керамических навесных панелей, которые обеспечивают долговременную надёжность здания, при этом обладают хорошими звукоизоляционными свойствами, влагоустойчивостью и морозостойкостью. Дом имеет огороженную территорию, на придомовой территории расположены : 2 детские площадки, 4 площадки для занятий физкультурой, 3 площадки для отдыха взрослого населения, гостевые автостоянки. Дом расположен в легкодоступной части города, имеющей преимущество в удалённости от основных «шумных» летних курортных площадок. До моря 15 минут пешком. В шаговой доступности находится сосновый бор и озеро Тихое, известное своей неповторимой красотой! Дом в центре города…до моря 10 минут ходьбы..
Отличное место для организации бизнеса… Звоните, я ЖДУ Вашего звонка…
Просмотр помещения в любое удобное для Вас время! Сопровождение сделки для покупателя бесплатно! Для покупателей из другого региона провожу консультации онлайн с просмотром жилого комплекса и офисного помещения. Экономьте свое время обращаясь к профессионалам. Возможно проведение сделки дистанционно не выезжая из вашего города.
Подробнее

Характеристики

  • Тип недвижимости Коммерческая
  • Район Светлогорский городской округ
  • Населенный пункт Светлогорск
  • Адрес бульвар Олимпийский, д.4
  • Общая площадь 61.8 м²
  • Вид объекта Офисное помещение
  • Этаж 1
  • Этажность дома 7
Задать вопрос


Вас также может заинтересовать:
10
Торговое помещение 55 м²
Светлогорск, бульвар Олимпийский, д.4

3 969 000
  • Вид объекта:Торговое помещение
  • Этаж:1
  • Этажность дома:7
4
Офисное помещение 55.7 м²
Светлогорск, бульвар Олимпийский, д.4

3 969 000
  • Вид объекта:Офисное помещение
  • Этаж:1
  • Этажность дома:7
7
цена снижена
Светлогорск, бульвар Олимпийский, д.4

3 969 000
  • Вид объекта:Офисное помещение
  • Этаж:1
  • Этажность дома:7

Мы используем файлы cookie, чтобы обеспечить вам наилучший доступ к нашему веб-сайту

Скопировано